建具考
4.藤岡家住宅ファサードの柱間装置 その1
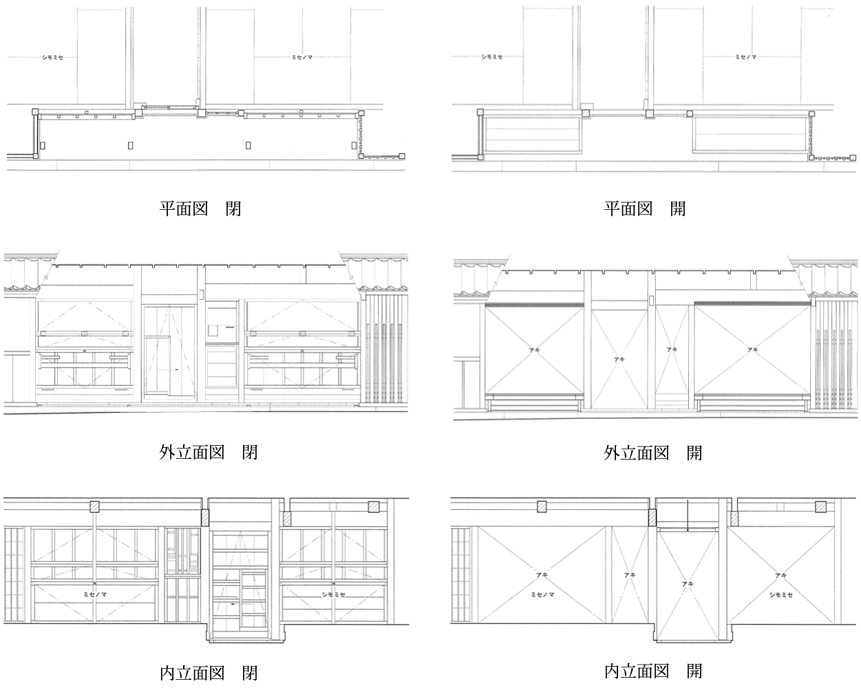
藤岡家住宅は「信貴山縁起絵巻 」「洛中洛外図」「奈良名所図 」にみる町家に比べて間口が6 間半と大きくなっていますが、 これは、当初の地割りが間口2 間から3間程の区画を2区画か ら3区画集合されたものにより ます。ファサードを観ると屋根 は瓦葺で平入り、北側(右)か ら前塀に客用通用門、丸太格子、ミセノマの揚げ見世・蔀戸、戸口のはね 上げ大戸、シモミセの揚げ見世・蔀戸と続き、商家であるためシモミセ、 ミセノマのミセ部分も大きくとられていてファサードにも変化があり多様 な構成となっています。

閉(上)開(下)時のミセノマ外面

閉(上)開(下)時のミセノマ内面
